新竹

林宅

作品集 | 2023 完工

新竹林宅

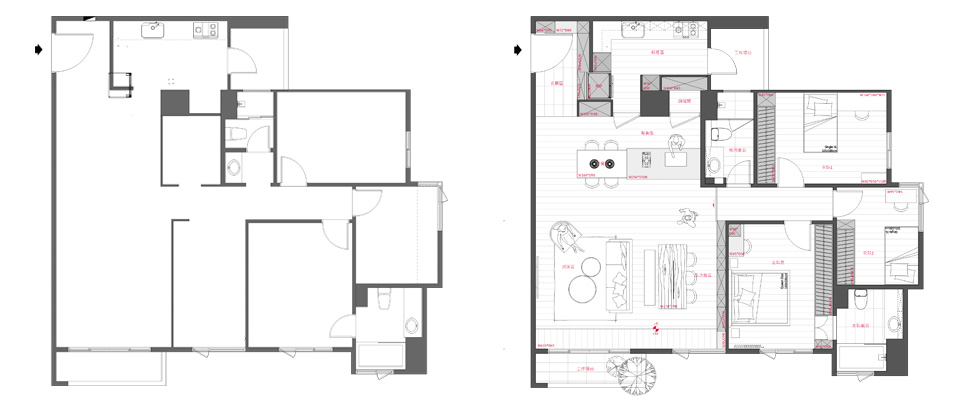
空間性質 | 住宅

空間面積 | 室內 34 坪

主要建材 | 天然木皮、手工塗料、超耐磨木地板、訂製鐵件

座落位置 | 新竹

完⼯⽇期 | 2023年

Banner

空間規劃始於對生活本質的思考。
在這個案例中,我們以開放式格局為基礎,透過材質與光影的細膩運用,勾勒出一個寧靜舒適的生活場域。
閱讀區的規劃選用無印良品的書櫃系統,搭配客製的木作矮櫃,不僅滿足收納需求,更創造出豐富的展示可能。
滑門的設置則解決了公私領域的區隔需求,讓空間運用更具彈性。
大面積的落地窗引入充沛的自然光,讓整個空間明亮通透。客廳區域以米白色布質沙發為主角,
搭配訂製的實木餐桌與餐椅,創造出舒適的起居空間。
新增開放式料理區的設計不僅方便烹飪,更讓餐敘成為溫馨的社交場域。
每一處細節的安排與屋主集思廣益,從燈具的配置到家具的挑選,都在追求一種簡約而不失溫度的生活態度。
這個空間展現了如何在現代都會生活中,找到一處能夠沉澱心靈、享受生活的歸屬之所。