香山

林宅

作品集 | 2025 完工

香山林宅

空間性質 | 住宅

空間面積 | 室內 25 坪

主要建材 | 天然木皮、手工塗料、霧面石英磚、訂製鐵件

座落位置 | 新竹香山

完⼯⽇期 | 2025年

Banner

一開始討論時,屋主提到自己收藏好幾把吉他,我們立即想像這會是一間很有個性的家。
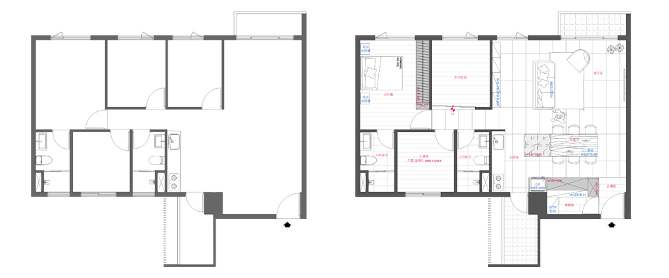
把原本的四房改成三房,讓起居區更寬敞、採光也更好。
盡量減少木作,非必要就不做天花板,書櫃使用 Vitsoe 606 系統層架。
除了中島和廚櫃,沒有固定櫃體。沙發、單椅、電視,甚至書櫃,都能調整組合,隨時變成寫字桌模式。
這樣一來,日常時每個人都有自己的舒適角落;
朋友來訪時,大家能面對面聊天,而不是整排坐沙發對著電視。
走廊旁的客房改為開放式,讓自然光也能灑進走廊。
高架地坪平時可當閱讀或休憩區,有客人來就變成通舖,靈活又實用。